Zpět Zpět na výpis nemovitostí

Pronájem bytu 2+kk 82 m², Panuškova, Praha-Krč

Panuškova, Praha Zobrazit na mapě Zobrazit na mapě

Stav

Volný

Typ

2+kk

Obytná plocha

82 m2

Stav objektu

Novostavba

Stavba

Cihlová

Vlastnictví

Osobní

23 990 Kč

Pohlídejte si cenu této nemovitosti Pohlídejte si cenu této nemovitosti

Sledovat dostupnost

Upozornění

Pohlídejte si změny u této nemovitosti

Dáme vám vědět, ať už se změní cena nebo stav nemovitosti.

Upozornění

O vaše data je u nás postaráno. Přečtěte si naše podmínky pro ochranu os. údajů.

Kalkulačka financování Kalkulačka financování

Spočítejte si, na kolik vás vyjde hypotéka

Spočítejte si, na kolik vás vyjde hypotéka

Spočítejte si, na kolik vás vyjde hypotéka

Nějaký zajímavý podnadpis

Více o této nemovitosti

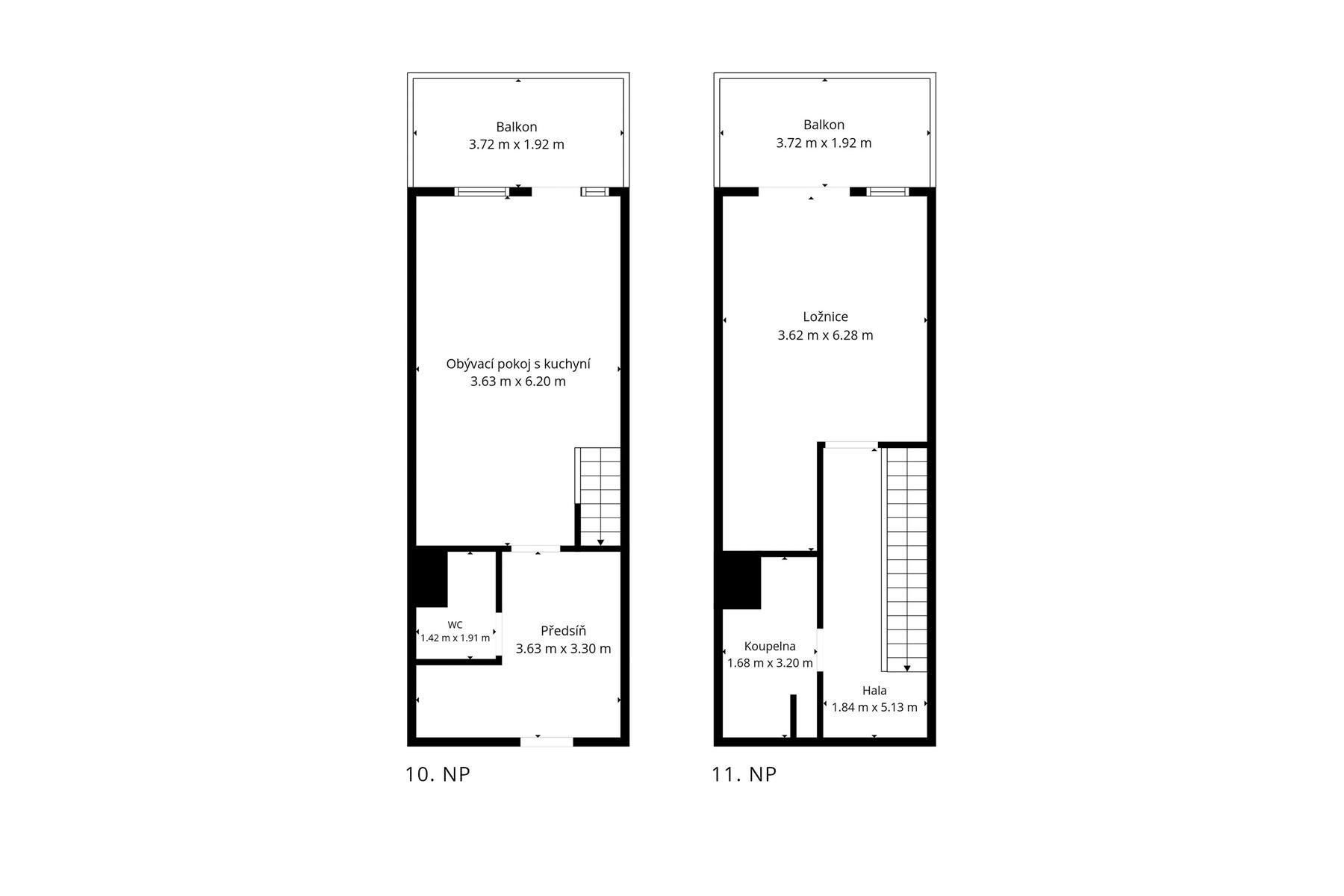
Nabízím k pronájmu krásný mezonetový byt o dispozici 2+kk, obytné ploše 69 m², užitné ploše 82 m², s garážovým stáním a dvěma balkony (13 m²).

Nachází se v 10. a 11. patře moderní novostavby v ulici Panušková, v Praze 4 – Krč. Horní patro bytu je zároveň poslední, což zajišťuje soukromí a velmi pěkné výhledy napříč Prahou. Díky jihozápadní orientaci je byt po celý den krásně prosvětlený.

Byt prošel v roce 2024 rekonstrukcí a je připraven k okamžitému nastěhování. Je vybaven moderním nábytkem a kvalitními spotřebiči, dle fotodokumentace.

Vstupní předsíň nabízí vestavěnou skříň a kout s úložným prostorem. Také je zde vstup na samostatnou toaletu. Z předsíně se dále dostanete do prostorného obývacího pokoje, který je propojen s kuchyňským a jídelním koutem.

Kuchyň je plně vybavena: lednice, trouba, mikrovlnná trouba, myčka a varná deska. Z pokoje je přístup na zastřešený balkon.

Po schodišti se vchází do horního patra, kde se nachází prostorná chodba, odkud se dostanete do ložnice se šatní skříní, pracovním koutem a vstupem na druhý balkon. Na tomto podlaží je také koupelna se sprchovým koutem a toaletou.

V celém bytě jsou kombinovány plovoucí podlahy a dlažba v moderním provedení.

Dům nabízí non-stop recepci a bezpečnostní službu, které poskytují vysoký komfort a bezpečí.
V blízkém okolí je k dispozici kompletní občanská vybavenost — řada obchodů a restaurací, poliklinika, metro C Budějovická, autobus, široké možnosti sportovního vyžití i další služby.

Autobusová zastávka Ryšánka je přímo pod domem. Pokud jde o zeleň a výlety do přírody, v blízkosti se nachází Centrální park Pankrác i mnoho dalších parků v okolí.

Jedná se o místo, které splňuje všechny nároky na moderní městské bydlení.

Tento byt není vhodný k chovu domácích mazlíčků.

V případě zájmu mě kdykoliv kontaktujte. Ráda Vás bytem osobně provedu. K dispozici ihned.

Těším se na shledání. Pro komunikaci uvadejte evidencni cislo zakazky N117115.

Lokalita

Obec

Ulice

Panuškova

Informace o nemovitosti

Stav

Volný

Typ smlouvy

Pronájem

Typ nemovitosti

Byt

Jednotka

Obytná plocha

82 m2

Další informace

Typ

2+kk

Stav objektu

Novostavba

Stavba

Cihlová

Vlastnictví

Osobní

Energetická náročnost budovy

C - Úsporná

Balkón

Ano

Garáž

Ano

Navigovat k nemovitosti Navigovat k nemovitosti

Máte zájem o tuto nemovitost?

Kontaktujte mě a domluvme se na prohlídce

Dejte nám vědět, s čím vám můžeme pomoct

Osobně s vámi projdeme každý detail

Preferovaný den prohlídky

Preferovaný čas prohlídky

Nejpozději do 24 hodin se ozveme nazpátek.

O vaše data je u nás postaráno. Přečtěte si naše podmínky pro ochranu os. údajů.

Děkujeme za váš zájem

Vaše informace jsme přijali a brzy se vám ozveme.

Váš požadavek byl úspěšně odeslán

Dejte nám vědět, s čím vám můžeme pomoct

Osobně s vámi projdeme každý detail

Podobné nemovitosti v naší nabídce

Mohlo by vás také zaujmout

Prodáno
Detail nemovitosti

Prodej bytu 3+1 100 m², Za Novákovou zahradou, Praha-Satalice

Ulice Za Novákovou zahradou, Praha

8 490 000 Kč
Prodáno
Detail nemovitosti

Prodej bytu 3+kk 77 m², Praha

Ulice Praha

8 490 000 Kč
Prodáno
Detail nemovitosti
Prodáno
Detail nemovitosti
Prodáno
Detail nemovitosti

Prodej bytu 2+1 64 m², Černokostelecká, Praha-Strašnice

Ulice Černokostelecká, Praha

8 590 000 Kč
Prodáno
Detail nemovitosti
Prodáno
Detail nemovitosti

Prodej bytu 3+kk 64 m², Černokostelecká, Praha-Strašnice

Ulice Černokostelecká, Praha

8 590 000 Kč
Prodáno
Detail nemovitosti

Prodej bytu 1+kk 25 m², K Vystrkovu, Praha-Modřany

Ulice K Vystrkovu, Praha

4 590 000 Kč
Realizováno
Detail nemovitosti

Prodej bytu 1+kk 46 m², Svatoslavova, Praha-Nusle

Ulice Svatoslavova, Praha

7 900 000 Kč
Realizováno
Detail nemovitosti
Realizováno
Detail nemovitosti

Prodej bytu 1+kk 46 m², Svatoslavova, Praha-Nusle

Ulice Svatoslavova, Praha

7 550 000 Kč
Realizováno
Detail nemovitosti
Volný
Detail nemovitosti
Volný
Detail nemovitosti
Volný
Detail nemovitosti
Volný
Detail nemovitosti

Prodej bytu 1+kk 46 m², Svatoslavova, Praha-Nusle

Ulice Svatoslavova, Praha

7 400 000 Kč
Volný
Detail nemovitosti